I have some questions / comments about the size of the nightstand.
1) What is the height we are looking for?
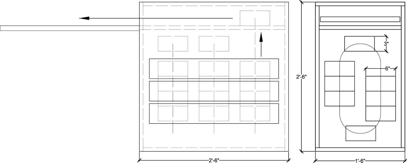
2) The boxes are 6" x 6" x 3" (h x w x d). There are 24 of these boxes.
3)Are we looking for the table to deploy directly over the person (this means the table has to be really high) or are we wanting the table to be able to bend up and over them?
4) What is the spacing requirement for all of the motors and processors?

No comments:
Post a Comment